欢迎加入“绿色产业大数据服务平台 碳中和-碳达峰-绿色金融-绿色产业-科技项目-政策解读-专家咨询-园区服务”!
当前位置:首页 > >乡村旅游 > 详情
临安青山湖科技城创客小镇
  • 作者:全国绿色产业与绿色金融创新平台
  • 发布时间:2020-09-04 01:39:30
  • 1145次

临安青山湖科技城创客特色小镇

一、项目概况

项目位于浙江临安市青山湖科技城核心区规划范围内,位于国家级森林公园青山湖东岸,东至临余界限及发达路,西靠十里科技长廊,北至胜联大山脚,南临南苕溪,规划面积3.17平方公里,建设面积约117万平方米。

项目规划范围图

临安青山湖科技城创客特色小镇

二、关于创客

1、创客概念

“创客”一次来源于英文单词“Maker”,是指出于兴趣与爱好,努力把各种创意转变为现实的人,创客来自于各行各业。根据Make杂志创始人Dale Dougherty,创客主要分为三类:Zero-to-Maker(入门创客),Maker to Maker(与创客协作的创客),Maker to Market(进入市场的创客)。在中国语境里,“创客”被赋予更多创新、创业的含义,广义指“进入市场的创客”,并包含“众创”意义。众创空间目前主要的两种业态是现有的孵化器和创客空间,此外还包括创业咖啡等新型孵化器模式。

创客分类图

临安青山湖科技城创客特色小镇

2、发展现状

中国创客目前还处于发育期,数量和规模都较小,目前形成了北京、上海、深圳、杭州等几大创客集聚区。北京市依托丰富的科技创新创业资源,成为我国众创空间发展最快的城市。上海近几年来涌现了新车间、IC咖啡、启创中国、飞马旅、苏河汇等新型创业服务组织。深圳由于研究机构众多和知名高校集聚,加上产业链配套完善,为“创客族”的生长提供了丰富的养分,位于华侨城创意园的柴火创客空间,是深圳最早的创客聚集地之一。深圳创客除关注单一的产品创制,更涌现出类似矽递科技、创客工厂等平台级的公司。

全国创客空间分布图

临安青山湖科技城创客特色小镇

三、发展条件

1、地理区位条件

小镇位于青山湖科技城内,东侧紧邻余杭区,西侧与临安主城区隔湖相望,处于杭州都市区的半小时交通圈内,距离杭州中心区31公里,到萧山机场约60分钟车程。随着杭州创新向东,制造向西的战略的推进,青山湖科技城突破行政界线,纳入大城西科创产业集聚区内,作为整个杭州甚至浙江的科技创新引擎,已由传统的西部边缘地区向竞争优势地区转变。

2、交通区位条件

青山湖科技城位于规划绕城高速西复线外,随着杭州二绕的建设,小镇与杭州市外围其他组团的交通联系将大大加强。轨道交通5号线及留祥路西沿线的建设将会加速杭临同城化进程,使科技城更加积极的融入杭州城区。

项目交通区位图

临安青山湖科技城创客特色小镇

3、生态条件

青山湖科技城处于杭州西部的生态屏障内,依托天目山、大茅山等山系余脉,位于西湖——西溪——南湖——青山湖生态轴线上。汇聚天目山之水的青山湖犹如珍珠镶嵌在青山环抱中,发源于天目上麓的苕溪东西向流淌,向北直到德清,整体生态基质极其优越。

4、文化条件

临安属于吴越文化区,钱王生于斯,葬于此。千年的吴越文化造就了这片土地上“海纳百川、兼容并蓄;聪慧机敏、灵动睿智;经世致用、务实求真;敢为人先、善于创造”的精神。小镇作为以创新、科研应用为主体的区域,将延续吴越文化这种开放、务实、睿智、创新的精神。

三、项目定位

项目以“云制造”为特色,以“山水”为特质,以“文化”为内涵,以“生态低碳”为目标,打造融云智造服务、创业创新、科技研发、文化展示、旅游休闲、生活居住、社区服务等功能于一体的创客特色小镇。

四、功能分区

项目功能板块分为“一中心和八大片区”。其中,以高校科研片区、科研单位片区、智慧硅谷片区、创业孵化片区四大片区为主功能片区,以管理服务中心、商业服务片区、SOHO片区、中试转化片区、居住生活片区为配套服务片区。

项目功能分区

临安青山湖科技城创客特色小镇

五、重点项目规划

(一)南部区块

1、功能定位

南部区块通过城市发展功能轴和山水渗透绿轴的打造,形成汇聚云创综合服务、旅游接待、云创工坊等多种功能,以展示云制造产业发展形象的山水门户区。

2、建设项目

南部区域建设项目包括云创部落、云中制造、云创中心、创客梦工厂、集团云办公、云创岛、智汇广场、智汇街等项目。

南部区块规划图

临安青山湖科技城创客特色小镇

云创部落效果图

临安青山湖科技城创客特色小镇

云创中心效果图

临安青山湖科技城创客特色小镇

创客梦工厂效果图

临安青山湖科技城创客特色小镇

集团云办公效果图

临安青山湖科技城创客特色小镇

智汇街效果图

临安青山湖科技城创客特色小镇

(二)中部区块

1、功能定位

中部区块是小镇内最主要的科研院所集聚区块,主要提供研发创新、高端云办公及休闲交流的功能。

2、建设项目

中部区块建设项目包括竹研究所、安全生产科学院、轻工业研究院、环境科学研究院、云创学院、高端云办公、康体中心、田园俱乐部、慢生活会所、青山公园广场等项目。

中部区块规划图

临安青山湖科技城创客特色小镇

竹研究所效果图

临安青山湖科技城创客特色小镇

环境科学研究院效果图

临安青山湖科技城创客特色小镇

云创学院效果图

临安青山湖科技城创客特色小镇

康体中心效果图

临安青山湖科技城创客特色小镇

慢生活会所效果图

临安青山湖科技城创客特色小镇

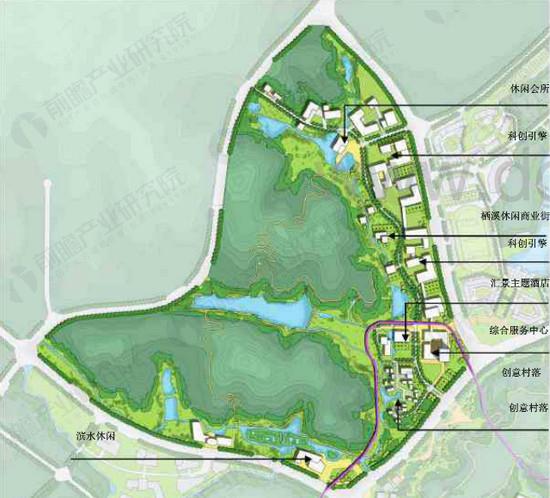
(三)北部区块

1、功能定位

北部区块依托于基地良好的自然景观,打造多元、生态化的融于山水的科创研发区域。

2、建设项目

北部区块建设项目包括休闲会所、栖溪休闲商业街、汇景主题酒店、创意村落及综合服务中心。

北部区块规划图

临安青山湖科技城创客特色小镇

休闲会所效果图

临安青山湖科技城创客特色小镇

栖溪休闲商业街效果图

临安青山湖科技城创客特色小镇

汇景主题酒店效果图

临安青山湖科技城创客特色小镇

创意村落效果图

临安青山湖科技城创客特色小镇

综合服务中心效果图

临安青山湖科技城创客特色小镇

六、项目思路

项目打破现有科研机构各自为政的现状,建立一个开放的、自有的交流空间,促进科研人员、科研机构无界交往,实现科研人员、创客、云平台技术服务人员的跨界融合,同时融入小镇特色文化,开发相应的旅游产品体系,打造“科技之谷,谷中之林,地域之核”。


声明:本文仅代表作者本人观点,与绿色大产业大数据数服务平台无关,文章内容仅供参考。凡注明“来源:绿色产业大数据服务平台”的所有作品,版权均属于绿色产业大数据服务平台,转载时请署名来源。 本网转载自合作媒体或其它网站的信息,登载此文出于传递更多信息之目的,并不意味着赞同其观点或证实其描述。如因作品内容、版权和其它问题请及时与本网联系。

友情链接 中国政府网 中国投资协会 银监会 商务部 工信部 国家发改委